Parasollen, Skövde
Tillsammans med bl.a. Götenehus uppförde vi 45 nya hyreslägenheter i Trädgårdsstaden i Skövde.
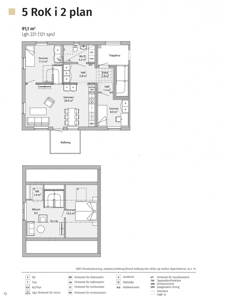
Från 1 rok på 27m² till 5 rok på 91m².
Inflyttning var 1 september 2019.
Lediga lägenheter
Söker du hyreslägenhet i Skövde?
Tillsammans med bl.a. Götenehus uppförde vi 45 nya hyreslägenheter i Trädgårdsstaden i Skövde.
Från 1 rok på 27m² till 5 rok på 91m².
Inflyttning var 1 september 2019.
Söker du hyreslägenhet i Skövde?
Redan inne i lägenheterna slås man av hur stora de känns, oavsett om det är en 1:a, 2:a, 3:a, 4:a eller 5:a. Den öppna planlösningen, i kombination med takhöjden på 2,45 meter, skapar luftiga ytor och ett trivsamt ljusinsläpp.
Lägenheterna har gestaltats utifrån några grundläggande kvaliteter. Bostaden har nära samband mellan kök och vardagsrum för att uppmuntra till gemenskap i de sociala rummen. Vidare har genomgående siktlinjer eftersträvats för att skapa god kontakt mellan inne och ute. Viktigt är också en funktionell och genomtänkt förvaringslösning. Badrummet är placerat nära entrén och är förberedda för tvättmaskin och torktumlare.
Den höga standarden är genomgående och märks i varje enskilt rum. Från ekparketten i vardagsrummet och Vedumköket med vitvaror från Electrolux, till badrummet med inredning från Vedum.
Tack vare husens höga kvalitets- och miljökrav kan du räkna med en låg energiförbrukning året om.
Rökfritt boende
Trähusstaden vill kunna erbjuda alla sina hyresgäster ett hälsosamt boende, och en rökfri boendemiljö. Därför utförs Trähusstadens nyproducerade fastigheter helt rökfria. Det innebär att man som hyresgäst i dessa fastigheter inte tillåts att röka varken på balkong/ altan eller inne i bostaden. Samtliga hyresgäster som bor i dessa fastigheter har som villkor i sina hyresavtal att hålla lägenheten och fastigheten rökfri.
Trähusstaden reserverar sig för eventuella förändringar av produkter och leverantörer.
Skövde – Kv. Staketet